位置:
澳大利亞
類型:
建筑
材料:
木材 磚石
標簽:
Melbourne
分類:
住宅 住宅建筑













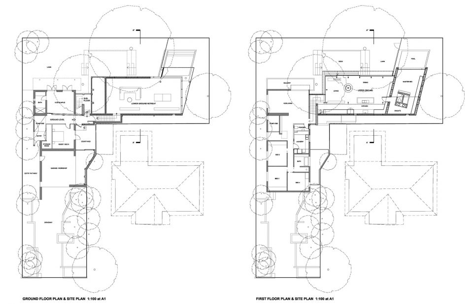
住宅位于坎伯威爾一個L型街區內,俯瞰一處蔥郁的公園景觀。原住宅坐落于一層磚砌地基上,居住空間也在次平面逐次展開。此次設計旨在擴充居住建筑的實用性,為家庭成員提供更多的生活空間,優化居住環境 ,在保留建筑遠眺公園景觀的前提下 ,并進一步拉近人與環境的關系。為了實現這一目標,設計師將居住空間分層,同時將入口移至住宅中心。在此規劃下,起居室、公共空間、兒童空間和成人私享空間獲得明確分區。
The site is located in Camberwell, Victoria on a unique L shape block, overlooking a leafy park. The existing architecture is rendered precast at first floor, sitting on external clinker brick planes at its base. Its living areas were originally situated at first floor. The brief was mostly pragmatic. More space for a large family, better zoning, and importantly to create a better connection to the outdoors but not lose the stunning views of the neighbouring parkland. To resolve this common negotiation, we created a new split level for the living areas and the entry experience was re-routed to this new centre which now served as a connecting element to very clear zoning, Kids, Parents, Guests, Living and outdoors.
新的空間布局給予居住生活全新的體驗。挑高的天花板讓室外綠植映入室內環境,讓人仿若站在籬笆觀賞室外的風景。該住宅設計理念與展廳設計理念如出一轍。木質柱廊圍合成“展廳”的外部邊界,木材頂棚搭建在柱廊之上形成明亮開闊的居住空間。富有韻律的柱廊為玻璃外表面帶來豐富的觸感和深度變化。原本裸露在外的砌磚墻壁重新出現在翻新的住宅內,內外材質的交替出現模糊了室內外的界限。
The feeling of being in the new space is of standing on-top the fence, in total connection with the park, with the split level allowing a lofty ceiling to accept the leafy aspect. The pavilion concept emerged organically from here. Timber posts form the boundaries of a “pavilion” and support a timber lined canopy overhead. The rhythm of these posts creates a tactility and depth to the edges of the space, modulating the hardness of the glass surface. The external clinker brick planes reappear to bookend the new interior, suggesting that the living areas are an external space.
簡單的陶瓷吊燈伴隨立面柱廊逐次排開。充滿獨特設計感的壁爐讓空間的垂直感覺格外突顯。盡管居住建筑并沒有延續中世紀的建造風格,但其內部家具和建造材料的選用均充分尊重了中世紀的裝飾風格。全新的居住空間主立面朝向東北和西北方向。寬敞的立面開窗讓冬日暖陽恣意穿透。北側屋檐沿東北和西北側立面蔓延,陽光劃過屋檐映入室內居住環境中。該居住空間全部采用自然通風,所有木材均取自當地原生橡木。
Simple ceramic pendant lights drape down at each post location and a dramatic fireplace reinforce the verticality of both the space and the neighbouring trees. The space defers to its mid-century roots in its horizontality, honesty in steel connections and braces, natural materials and joinery details. An external venetian blind enlarges the ubiquitous 50’s venetian, and the space is furnished with mid-century but forward looking furniture. The new living areas have been sited to face north east and north west. Large expanses of glass are utilized take in the natural beauty and allow winter sun to penetrate deep into the space. Sun penetration is regulated with northern eaves and an external venetian that spans the entire length of the main north eastern and north western fa?ades. All new spaces are naturally cross ventilated, and all natural timber Is native plantation oak.