位置:
澳大利亞
類型:
建筑
材料:
鋼
分類:
住宅 住宅建筑
















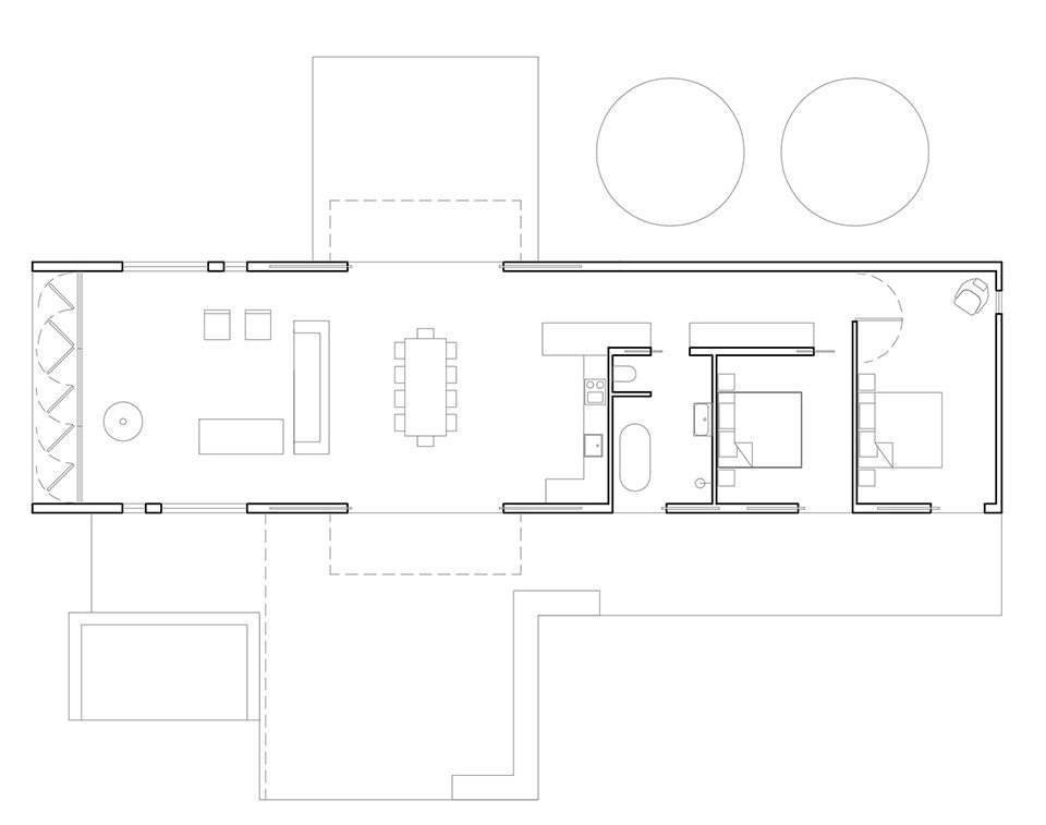
項目坐落于60公頃的開放田野上,附近是游牧的奶牛和波狀的丘陵,遠方是湖海與沙灘。在業主的要求下,該建筑擁有農牧小屋般的外貌,是一幢溫馨舒適的雙人度假屋。該設計以一種極其細致和精確的方式探究并展現了當地的鋼制門架類型建筑。南北走向的建筑搭配簡潔的平面規劃,讓建筑內部空間飽覽南面海景和北面田園風光。建筑入口與其對側的玻璃開口將另外兩側的景色圍框入內部空間里。
The project lies on 60ha of open field running dairy cows, with green rolling hills to a coastal lagoon, beach and ocean beyond. The response to the project, chiefly came from the clients brief to provide a modest two bed guest house that had a simple farm shed like appearance. The design explores the vernacular steel portal frame building typology in a highly refined and detailed way. The simple rectilinear floor-plan aligned with the long edges facing North/South, set up a strong primary axis as these also make best use of the ocean views to the south side and pastoral views to the north. At the point of entry, a framed view through the building to the ocean on the south side is formed.
該項目利用南北側平臺構建夏季和冬季戶外使用空間,令使用者可以根據個人喜好和需求,自由組織和調節內部光照與通風。項目中體現了眾多以當地文化環境中金屬牛棚為原型的設計細節,搭配風中滾動的綠色牧場,民俗風情和文化底蘊在該項目中獲得了回敬和升華。
The project utilises north and south decks as ‘winter’ and ‘summer’ outdoor space to enable the occupants to use the building mass as sun or wind protection moving to each side as favoured. The local cultural significance of metal shed dairy structures (many of which in view of the project) and iconic green rolling pastures in a seaside setting, is honoured and further explored.
場地的定位為室內空間提供了獨特的觀景視野,斜陽越過懸崖灑在牧草地上,居住者沉浸在獨特的空間體驗之中。住宅整個西立面均可通過活動面板調節采光和觀景視野。該可調節系統為室內生活空間營造戲劇化的光環境,而通過隱藏在地板下的液壓缸,居住者便可以將整個立面關閉。項目中所采用的可持續性設計手段包括被動式太陽能,高厚度絕緣墻壁,雙層玻璃,雨水收集,紫外線過濾及處理,現場污水處理和太陽能供給。
The site positioning offered a significant view towards the nearby dairy with the setting sun over the escarpment offering a unique user experience. The whole western facade is operable with a system of large operable panels employed to regulate light and views. The system provides dramatic light effects in to the living areas or can be fully closed at the touch of a button via Hydraulic cylinders hidden under the sub floor. Sustainability measures incorporated into the design are; passive solar, extra thick highly insulated walls, double glazing, rain water harvesting (off grid), with UV filtration and treatment, on-site sewage treatment and supplementary solar power.