位置:
澳大利亞
類型:
建筑
材料:
完成面 飾面板 木材 銹蝕(耐候)鋼 鋼 木地板 玻璃 家具 住宅家具
標簽:
Byron Bay 拜倫灣
分類:
住宅建筑 公寓









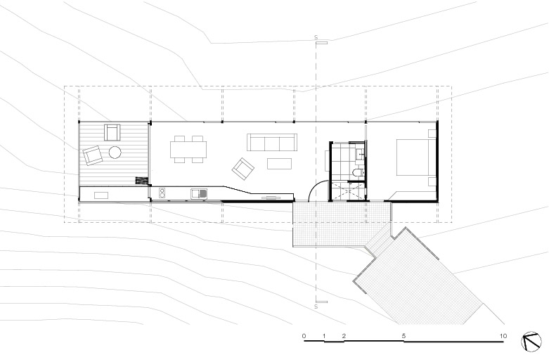
Hidden單間公寓位于拜倫灣Coopers Shoot一處20英畝的雨林中,是一個可以俯瞰內陸和太平洋的私密庇護所。項目完工于2017年。
Harley Graham Architects’ ‘Hidden Studio’ Byron Bay pays homage to Australia’s architectural heritage. Nestled into rainforest on a 20acre property in Coopers Shoot Byron Bay, ‘Hidden Studio’ by Harley Graham Architects is a private sanctuary with views over the hinterland and Pacific Ocean beyond. Completed in 2017, it was designed as a guest’s retreat in response to two existing dwellings on the same property; a writer’s cabin and family home both designed by acclaimed ‘Sydney School’ architect Vale Ian McKay. McKay spent the latter part of his career working in the Northern Rivers and passed away in 2015.
The owners, retired journalists Colleen Ryan and Stephen Wyatt, are self-confessed ‘designophiles’ who engaged Harley Graham and his team to create a space that not only responded to the work of McKay but showed sensitivity to the natural environment. In Stephen’s words; “we understood the need for professional architectural knowledge. We wanted a one-bedroom glass and cor-ten box that sat up in a rainforest canopy. Harley, Max and the team delivered just that with a lot more style.”
公寓在入口處幾乎是隱蔽的,但當你步入室內,落地窗使得這間60平方米的一居室空間變得非常開放。精心布置的巨大玻璃立面讓室內可以避免受到早上陽光的照射,同時隨著時間推移捕獲到宜人的北方冬季陽光。入口的“曲折”使屋頂看起來像是漂浮在亭子上的巨大保護板,進一步開放了空間。
The studio is virtually concealed upon entry, however as you step into the space floor-to-ceiling glass makes this 60m2 one-bedroom feel incredibly open. By carefully considering the orientation of the studio the large glass fa?ade is protected from low morning sunlight whilst capturing desirable northern winter sun as the day progresses. The angled ‘crank’ in the portals makes the roof appear to float over the pavilion forming a large protective plate and further opening the space.