位置:
葡萄牙
類型:
建筑
標簽:
Palmela 帕爾梅拉
分類:
博物館 文化建筑
這座博物館由一個完全封閉的、不透明的抽象盒子構成,僅有主立面上的一個凹洞標明了入口所在。建筑內部容納著有關機械音樂的私人收藏。
The museum consists of a completely closed, opaque and abstract box. Just the main facade has a concavity that marks the entrance of the building. It houses a private collection of mechanical music boxes.
▼抽象的外觀,an abstract box


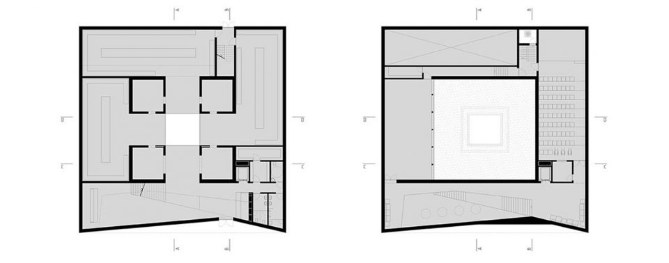
博物館的布局呈十字形,圍繞一個中央天井向四面展開。門廳位于其中一面,作為垂直的分流空間;其余三面則是大小不同的展廳。這些空間之間的過渡通過四個前廳得以實現。
The organization is cruciform, around a central patio, that distributes to the building’s four sides. In one side there is the lobby, that works as a vertical distribution space, and to the other sides are three galleries of varying sizes. The transition between each of these four spaces is done through four antechambers.
▼室內空間圍繞天井向四面展開,the organization is around a central patio, distributing to four sides

▼垂直分流空間,the vertical distribution space



▼展廳,the galleries



建筑的外觀看上去是一個極為簡約的盒子,但其內部空間又將這種樸素打破:長長的對角線透視以空間的形式打開并相互交叉,使參觀者在一個充滿誘惑的空間游戲中不斷窺得展廳的一角,從而在整個參觀過程中使好奇心得到充分的滿足。
The result is a box that seen outside looks very elementary, but whose interior dismantle this simplicity: exploring long diagonal perspectives that open as spaces are crossed – letting us see glimpses of galleries in a game of spatial seduction that seeks to maintain the curiosity of the visitor from the beginning to the end of the visit.